Rif. V001297
4 o più locali
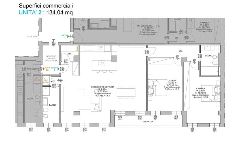
Nel cuore di Mestre, quartiere San Paolo, proponiamo spazioso appartamento di circa 135 mq, ideale per famiglie o per chi desidera ampi spazi abitativi in una delle zone più richieste e servite della città.
L’immobile si compone di:
Grande salone luminoso
Cucina abitabile
Due camere da letto
Studio, perfetto come home office o terza camera
Servizi
Ampio garage di proprietà
Possibilità di personalizzazione delle finiture, un valore aggiunto per creare una casa su misura secondo i propri gusti ed esigenze.
Soluzione ideale per chi cerca metrature generose, comfort e una posizione centrale comoda a tutti i servizi, scuole e collegamenti.
📍 Zona tranquilla e ben collegata
🏡 Ottima distribuzione degli spazi
🚗 Garage incluso
📞 Per maggiori informazioni o per fissare una visita, non esitare a contattarci.
|
SCHEDA
|
 |
FOTOGRAFIE, DOCUMENTI E VIDEO
|
 |
 |
| Prezzo: |
370.000,00 EUR |
| Spese Annue: |
Nessuna |
| Metri Quadri: | 134 | | Classe Energetica: | A2 | | Numero Locali: | 6 | | Numero Bagni: | 2 | | Numero Box: | 1 | | Mq Box: | 18 | | Stato Immobile: | Nuovo | | Grado: | Signorile | | Posizione: | Centro | | Piano: | Secondo | | Panorama: | Vista Aperta | | Orientamento: | Sud Ovest | | Lati Liberi: | 2 | | Tipo Soggiorno: | Salone | | Tipo Cucina: | Abitabile | | Riscaldamento: | Conta Calorie | | Tipo Impianto: | Radiatori | | Acqua Calda: | Autonoma | | Raffrescamento: | Split | | Infissi: | PVC Doppio Vetro | | Serramenti: | Ottimo | | Balconi: | No | | Terrazzi: | Uno | | Accesso Disabili: | Nessuna Barriera | | Accesso interno disabili: | Pieno accesso | | Isolamento: | Presente | | Isolamento termico: | Cappotto esterno | | Spessore cappotto (cm): | 15 | | Destinato a residenti: | Si | | Accessori: | Aria Condizionata, Ascensore, Cancello Elettrico, Doppi Vetri, Parco Condominiale, Porta Blindata, Portineria/Custode, Ripostiglio, Tapparelle Elettriche, Video Citofono |
|
 |
Clicca sulle foto per ingrandire
 
|