Rif. V001305
4 o più locali
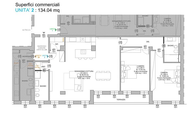
Scelta finiture, Nel cuore di Mestre, quartiere San Paolo, proponiamo spazioso appartamento di circa 135 mq, ideale per famiglie o per chi desidera ampi spazi abitativi in una delle zone più richieste e servite della città.
L’immobile si compone di:
Grande salone luminoso
Cucina abitabile
Due camere da letto
possibilità terza camera
due Servizi
Ampio garage di proprietà
Possibilità di personalizzazione delle finiture, un valore aggiunto per creare una casa su misura secondo i propri gusti ed esigenze.
Soluzione ideale per chi cerca metrature generose, comfort e una posizione centrale comoda a tutti i servizi, scuole e collegamenti.
📍 Zona tranquilla e ben collegata
🏡 Ottima distribuzione degli spazi
🚗 Garage incluso
📞 Per maggiori informazioni o per fissare una visita, non esitare a contattarci.
|
SCHEDA
|
 |
FOTOGRAFIE, DOCUMENTI E VIDEO
|
 |
 |
| Prezzo: |
370.000,00 EUR |
| Spese Annue: |
Nessuna |
| Metri Quadri: | 134 | | Classe Energetica: | A2 | | Numero Locali: | 6 | | Numero Bagni: | 2 | | Numero Box: | 1 | | Mq Box: | 18 | | Stato Immobile: | Nuovo | | Grado: | Signorile | | Posizione: | Centro | | Piano: | Secondo | | Panorama: | Vista Aperta | | Orientamento: | Sud Ovest | | Lati Liberi: | 2 | | Tipo Soggiorno: | Salone | | Tipo Cucina: | Abitabile | | Riscaldamento: | Conta Calorie | | Tipo Impianto: | Radiatori | | Acqua Calda: | Autonoma | | Raffrescamento: | Split | | Infissi: | PVC Doppio Vetro | | Serramenti: | Ottimo | | Balconi: | No | | Terrazzi: | Uno | | Accesso Disabili: | Nessuna Barriera | | Accesso interno disabili: | Pieno accesso | | Isolamento: | Presente | | Isolamento termico: | Cappotto esterno | | Spessore cappotto (cm): | 15 | | Destinato a residenti: | Si | | Accessori: | Aria Condizionata, Ascensore, Cancello Elettrico, Doppi Vetri, Parco Condominiale, Porta Blindata, Portineria/Custode, Ripostiglio, Tapparelle Elettriche, Video Citofono |
|
 |
Clicca sulle foto per ingrandire
 
|